This project involved developing and manufacturing custom lighting, metalwork, selected furnishings, and artistic details for the Kuma's Corner West Loop location located on Peoria and Fulton Market in Chicago, IL.

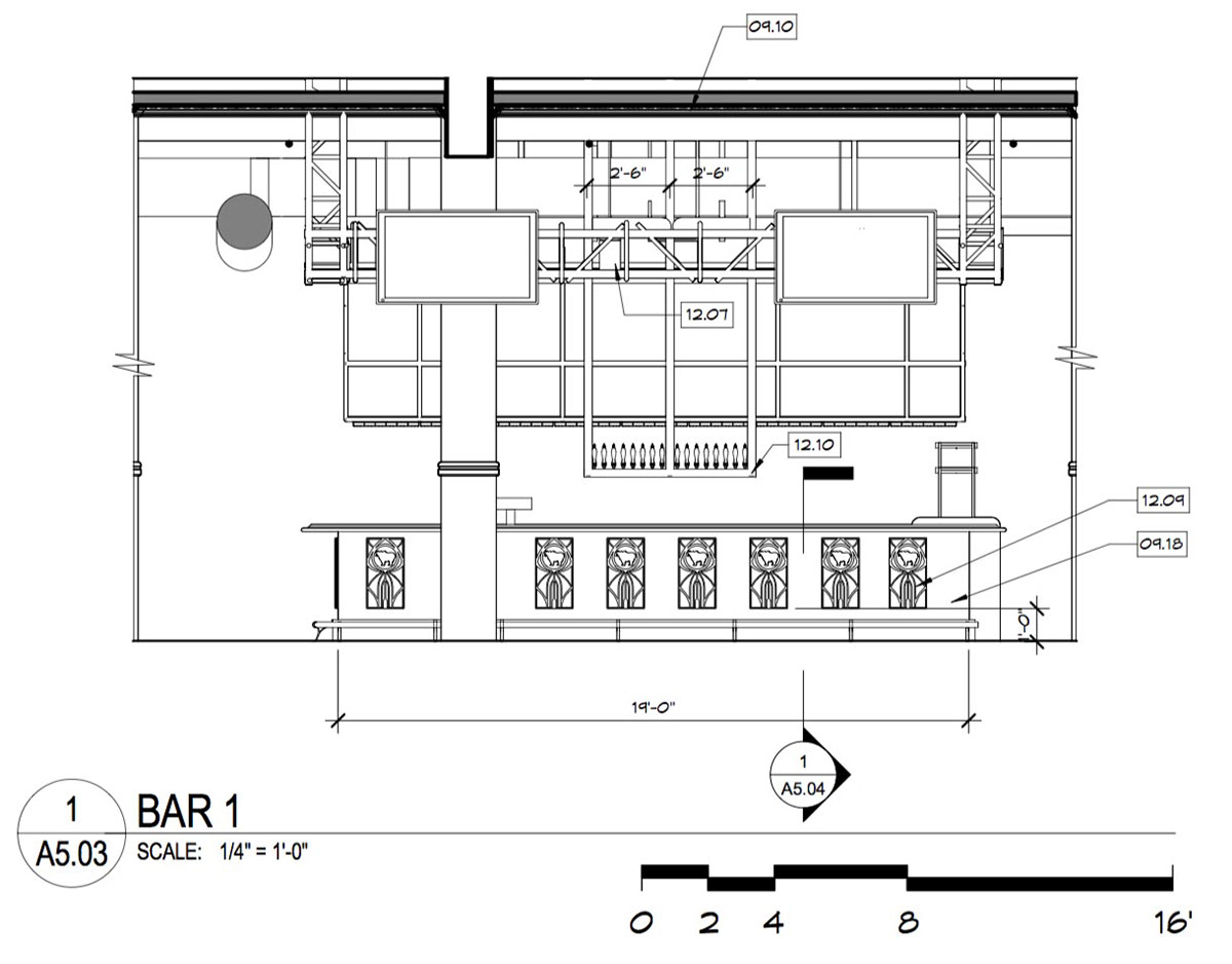
Hand Blown "Boolean" Pendants and custom below bar Shadow Boxes encircle the bar.

5 custom larger Boolean Pendants were produced for the west wall portals.

Computer generated render of concept for shadow boxes

Custom below bar LED shadow boxes with rusted steel patina.



































